Direkt TCS4 (Csoportos mérés) PVTCS 2-4 12ÁK
Direkt TCS4 (Csoportos mérés) PVTCS 2-4 12ÁK
528 320 Ft

Direkt TCS4 (Csoportos mérés) PVTCS 2-4 12ÁK

Direkt TCS4 (Csoportos mérés) PVTCS 2-4 12ÁK
Direkt TCS4 (Csoportos mérés) PVTCS 2-4 12ÁK

Csak személyes átvétellel és csak előre utalással vásárolható meg a termék, a vásárlástól elállni nem lehet, mert egyedi termék.

 

Érdeklödni: +36305313786

 

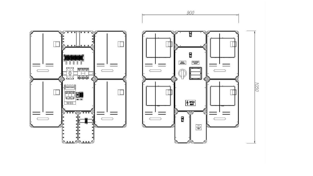
Két-négy felhasználási helyes M63A csoportos mérés rendszer, felületre szerelt kivitelben,
túlfeszültség levezetővel, tűzeseti leválasztóval

Kivitel
Felületre szerelt (F), Földkábel (K)
Méret
Magasság 1050 mm x Szélesség 900 mm x Mélység 203 mm
Típus
Rendszerengedélyes kész elrendezés opcióval
Márka
Csatári-Jáger Konzorcium
Rendelhető
528 320 Ft
Részletek

Megjegyzések:
- Túlfeszültség-védelmi készülék beépítésére előkészítve.
- A túlfeszültség-védelmi készülék nem része a főelosztónak.
- A társasházi mérőhelyek max.63A-es kialakítással készülnek, de PVT 3075 Fm 80-CS alkalmazásával 80A-ig bővíthető.
- A csoportos mérőhely minimálisan két mérőhelyet tartalmaz, ami 4 mérőhelyig bővíthető.
- A mérőhelyek opcionálisan fogyasztói elosztókkal bővíthetők.
- Vezeték H07V-K 16mm2 63A-ig
- Vezeték H07V-K 25mm2 80A

Adatok
Gyártó
Csatári-Jáger Konzorcium
IP Védelem
IP65
Anyag
Üvegszálas poliészter alj, polikarbonát tető
Cikkszám
CSP21-tT001AK
Vélemények